Last updated : Aug 5 2025






| Type | Carpet Area | Price | Floorplan | Room sizes | |
|---|---|---|---|---|---|
| 719 Sq.ft | ₹ 2.1 Cr | [ View Now ] | [ View Now ] | ||
![]() | |||||
| 771 Sq.ft | ₹ 2.25 Cr | [ View Now ] | [ View Now ] | ||
![]() | |||||
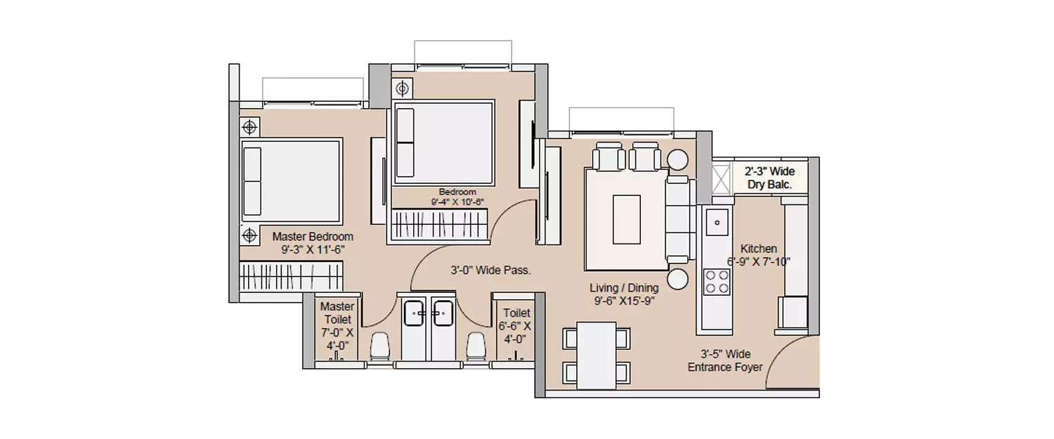
| 1130 Sq.ft | ₹ 3.29 Cr | [ View Now ] | [ View Now ] | ||
![]() | |||||
Sunteck Flamingo is located in the most excellent locality of Airoli, Navi Mumbai. It's now presenting matchless 2 and 3 bhk homes that are ensured well ventilated, spacious & secure. Inclusively, Airoli in Navi Mumbai shares great availability with Mumbai through Mulund Airoli Road, which further associates it toward the Eastern Express Highway, offering inescapable admittance to key zones of Mumbai. Additionally, it's also associated with Thane and other key regions of Navi Mumbai through Thane Belapur Road. With this, in Sunteck Flamingo, you can enjoy a wide range of lifestyle amenities like a Clubhouse, Landscape Garden, Jogging/Strolling Track, Kids Play Area, Multi-Purpose Hall, 24/7 Surveillance, etc.













Explore nearby areas around your dream project
The price depends on the configuration; please check projects’s Floor Plans & Room Sizing of Sunteck Flamingo
Yes, the Sunteck Flamingo is RERA-registered with the number P51700011528.
The carpet area ranges from 719 sq.ft. to 1130 sq.ft., depending on the unit type.
Yes, home loan assistance is available. Please click here
The project is located on Near Sector 12, Airoli. The full address of Sunteck Flamingo is Sunteck Flamingo, Sector 12, Airoli, Navi Mumbai, Maharashtra 400708
The pincode of Sunteck Flamingo is 400708
Yes, you can schedule a site visit by contacting the developer or HomeBazaar.
The project offers 2,3 BHK apartments.
The project is developed by Sunteck Realty.
Yes, the buildings are designed to be earthquake-resistant.
Airoli is a sub-locality in Navi Mumbai. It is viewed as a passage to Navi Mumbai and is effectively available from both Mumbai and Thane. Fair availability and the presence of significant business center points make Airoli a favored territory for purchasers and financial specialists. Airoli shares a great network with Mumbai through Mulund-Airoli Road, which further associates it toward the Eastern Express Highway, offering boundless admittance to key regions of Mumbai. The territory has great social infra, for example, schools, universities, medical clinics, markets, and shopping centers.