Last updated : Feb 27 2026






Rustomjee Ocean Vista is located in Andheri West, Mumbai, which is known for its vibrant living environment, lavish eateries, premium homes, and proximity to key areas. The project is strategically placed making it a prime residential destination with its seamless connectivity. Residents of Rustomjee Ocean Vista can benefit from the ease of reaching the bustling New Link Road, sophisticated restaurants, and various shopping outlets. The neighborhood has lush greenery, and landmarks like Manish Nagar Park, Nana Nani Park, and Chacha Nehru Park are just a short drive away. The quick access to Jogeshwari Flyover, Versova-Bandra Sea Link, New Link Road, and Lokhandwala Creek Bridge reduces the time taken to travel within the city. Bhavan's College, Versova Welfare Primary School, and Parle Tilak Vidyalaya ICSE School are some of the quality educational institutions in the project vicinity. These factors make this locality a bustling area to invest in.
Explore the Street View and vibrant surroundings of Rustomjee Ocean VistaPark, right from the comfort of your screen.Park,
| Type | Carpet Area | Price | Floorplan | Room sizes | |
|---|---|---|---|---|---|
| 2394 Sq.ft | ₹ 22 Cr | [ View Now ] | [ View Now ] | ||
![]() | |||||
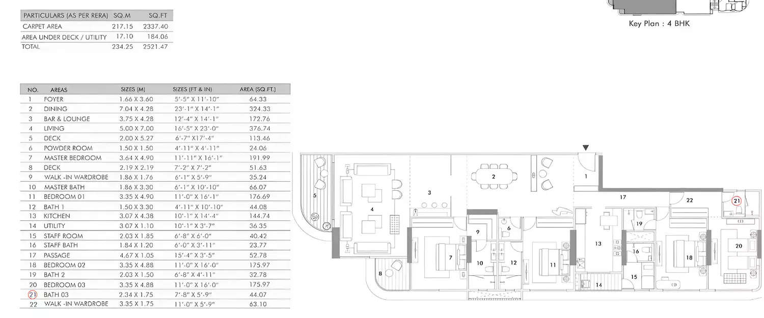
| 2521 Sq.ft | ₹ 23.16 Cr | [ View Now ] | [ View Now ] | ||
![]() | |||||
Discover the location of Rustomjee Ocean Vista with seamless connectivity and nearby landmarks.
Rustomjee Ocean Vista is a 0.5-acre elite residential landmark along the sea face in Versova. This stunning elevation offers ultra-spacious 4 BHK residences with mesmerizing views of the Arabian Sea from private decks. The lavish apartments are finely designed with sleek interiors, open layouts, and branded fittings. The homes have an 11 ft floor-to-ceiling height for better light & ventilation and offer design versatility. There are a total of 24 storeys and a ground floor in this prestigious project. Carpet areas range from 2394 sq ft to 2521 sq ft in this spacious apartment complex. Each apartment occupant gets uninterrupted sea views from the comfort of their homes.
Internal Specifications:
An RCC-framed structure for durability and a 213 ft sundeck with an ocean view are provided in this lavish apartment complex. The kitchens have vitrified tile flooring.
Rustomjee Ocean Vista further provides a wide variety of recreational and fitness facilities. It includes a banquet hall, swimming pool, yoga zone, gymnasium, kids play area, multipurpose lawn, alfresco lounge, spa, banquet hall, jogging track, landscaped garden, rooftop deck, dedicated parking space, and more.
Andheri West is strategically located to offer exceptional connectivity and excellent social amenities. The locality hosts the finest educational, health, and recreational avenues. The area is well-connected to other key areas including Andheri West, D.N. Nagar, Four Bungalows, Seven Bunglows, Juhu, Vile Parle, Santa Cruz, and more easily via railway and metro transit.
Dmart, Fun Republic Mall, Magic Garden Juhu, Infiniti Mall, and Bombay Super Market, Cinepolis are just around the corner for shopping, recreation, and daily essentials.













Click to download Rustomjee Ocean Vista Brochure.
Rustomjee Ocean Vista is located in the posh locality of Versova, Andheri West.
Ultra-spacious and lavish 4 BHK flats for sale in Versova, Andheri West are available in Rustomjee Ocean Vista.
Diverse carpet areas can be availed of as per the occupants’ family sizes and needs. The carpet areas offered in the project range from 2394 sq ft to 2521 sq ft.
Versova is a premium locality with every essential easily accessible for the residents. Access top healthcare facilities, easy access to other areas of the city, metro connectivity, and upscale living experience.
There are a total of 24 storeys in this high-rise apartment complex offering optimally designed 4 BHK flats for sale in Versova.
Rustomjee Ocean Vista offers lavish 4 BHK residences in this prime location in Versova, Andheri West. Closely located to many social infrastructures and one of the most upscale neighborhoods in Mumbai. The homes come with private decks for unparalleled views of the Arabian Sea. Being in a prime location, this project has the potential to multiply in property prices in the coming years increasing the return on investment. This is the right opportunity for investors looking to invest in 4 BHK apartments in Versova - Rustomjee Ocean Vista.
Amenities such as mesmerizing views of the Arabian Sea from the private decks, 11 ft floor-to-ceiling height for ample ventilation and light, a 213 ft sundeck with Arabian sea view, and more are provided. Lifestyle enhancing amenities including dedicated parking space, uninterrupted sea views, private sun decks, lobby, yoga zone, gymnasium, kids’ play area, multipurpose lawn, alfresco lounge, spa, banquet hall, jogging track, landscaped garden, and more are exclusive for occupants at Rustomjee Ocean Vista Versova.
There are several corporate and IT establishments near Rustomjee Ocean Vista including Tata Consultancy Services (TCS), Larsen & Toubro Infotech, Tech Mahindra, and Accenture. It takes approximately 30 to 35 minutes to travel to these corporate and IT establishments from Rustomjee Ocean Vista.
Within a 20-minute travel time from Rustomjee Ocean Vista, you have access to several hospitals and clinics. Bellevue Multispeciality Hospital Pvt Ltd, Criti Care Asia Multispeciality Hospital, etc can be reached in approximately 10 minutes. These hospitals and clinics provide essential healthcare services within a comfortable distance.
The Western Express Highway, New Link Road, Versova Andheri Link Road, Chhatrapati Shivaji Maharaj Flyover, and D N Nagar Flyover are some of the major bridges and roads near Rustomjee Ocean Vista.
Banks including Central Bank, IndusInd Bank, Kotak Mahindra Bank, Bank of Maharashtra, Axis Bank, etc are near the project for easy access to financial services for residents of Rustomjee Ocean Vista Versova.
The project allows its residents to experience living amidst ample nature and access uninterrupted sea views from the comfort of their homes.
Located in the bustling city of Mumbai, Andheri is a vibrant locality that offers a perfect blend of residential, commercial, and entertainment opportunities. Known for its lively atmosphere, excellent connectivity, and diverse amenities, Andheri has emerged as one of the most sought-after neighbourhoods in the city. The area is separated into Andheri West and Andheri East for administrative purposes. Andheri boasts exceptional connectivity, making it a preferred choice for residents and businesses alike. The locality is connected to major parts of Mumbai through the Western Expressway, Andheri Railway Station, and the Mumbai Metro Line 1. The presence of a domestic and international airport further enhances its accessibility, catering to both domestic and international travellers. Andheri is home to a diverse residential community, offering a wide range of housing options to suit various preferences and budgets. Luxury apartments, gated communities, and affordable housing societies are all available in properties in Andheri, giving residents a wide range of options. Also, Andheri is a thriving commercial hub, hosting numerous business establishments, corporate offices, and commercial complexes. The presence of business parks, IT hubs, and coworking spaces has attracted both domestic and international companies, making it a hub for employment opportunities. Whether you seek to buy property in Mumbai, convenience, entertainment, or a bustling urban lifestyle, Andheri has something to offer everyone.